Appartamento in Vendita – OSTRA

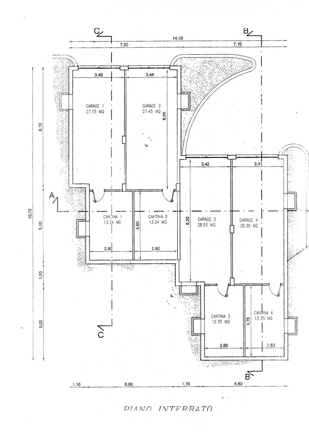
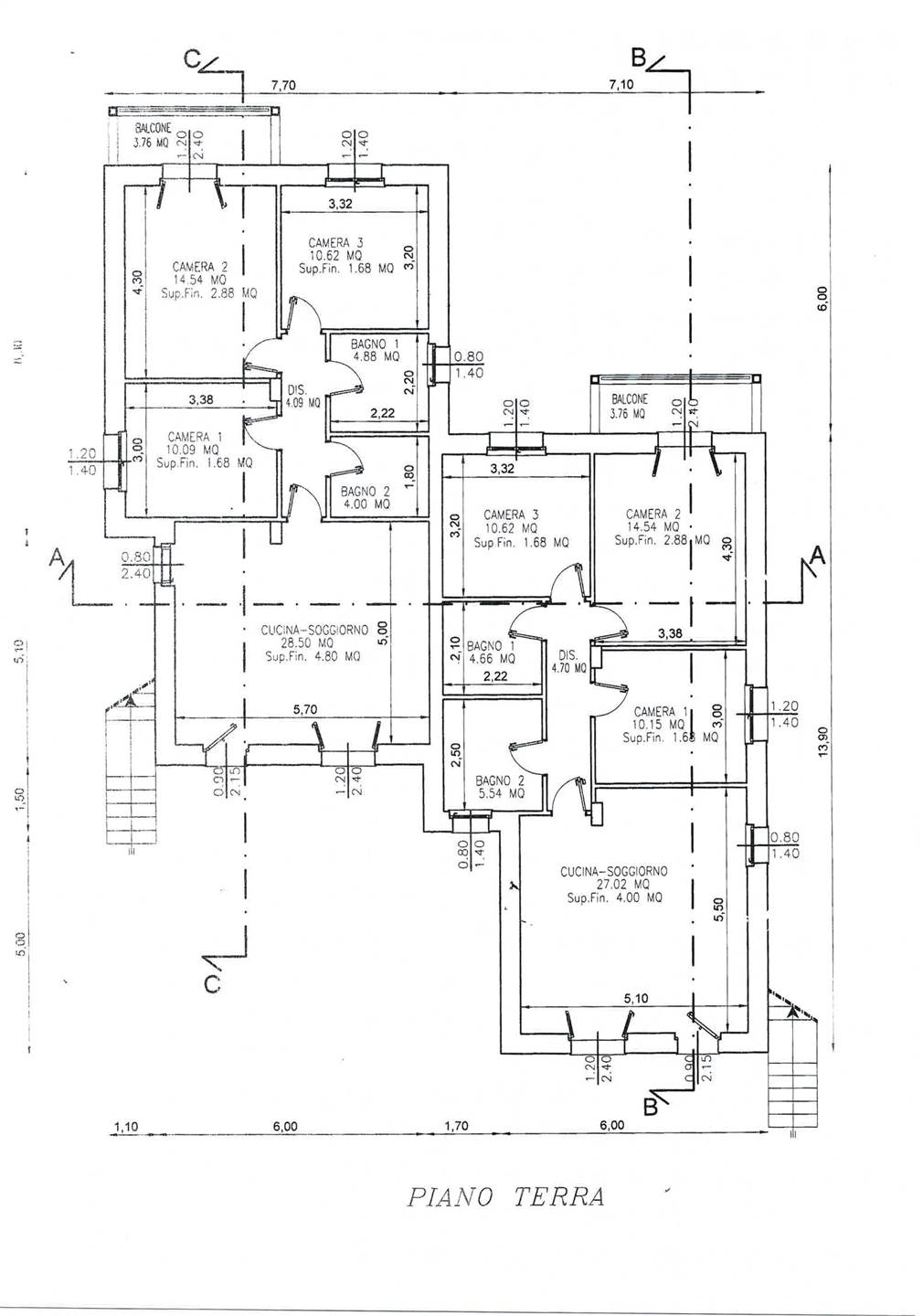
AV265 OSTRA nuova costruzione di palazzina con 4 appartamenti, 2 al piano terra e due al primo piano, con garage al piano seminterrato. L'appartamento di 95 mq si apre sulla zona giorno con la cucina a vista e balconi con affaccio sulla campagna circostante. CARATTERISTICHE . classe energetica A . impianto di riscaldamento radiante a pavimento con pompa di calore all'esterno . pannelli fotovoltaici . solare termico per la produzione di acqua calda con boiler d'accumulo . predisposizione impianto di condizionamento dell'aria . impianto di ventilazione meccanizzato per il ricambio d'aria . infissi in legno di pino con persiane esterne in alluminio . portone d'ingresso blindato . tetto in coppo-tegola . struttura in cemento armato
Caratteristiche dell'immobile
Contratto: Vendita
Tipologia: Appartamento
Superficie: 95 mq
Condizioni: Nuova costruzione
Riscaldamento: Autonomo
Camere: 3
Bagni: 2
RICHIEDI UNA VISITA

Agente immobiliare