Appartamento in Vendita – TRECASTELLI

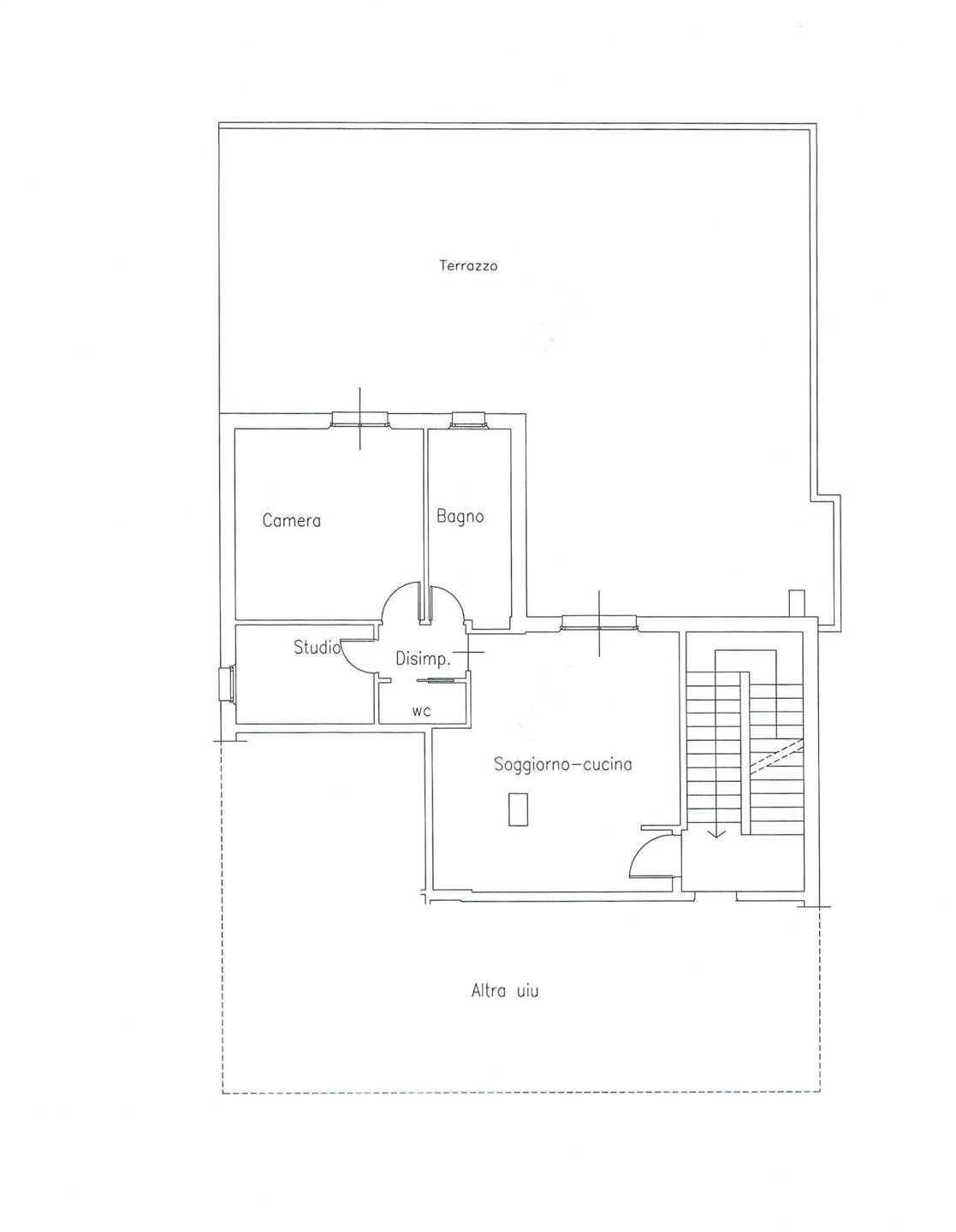
RIFAVC031 Trecastelli, in località Passo Ripe, appartamento pari al nuovo, alta classe energetica, composto da zona giorno con cucina a vista e affaccio su fantastica terrazza di 100 mq, una camera da letto, uno studio e due bagni. L'appartamento si trova al primo piano (non c'è l'ascensore ma la scala è veramente comoda) di un piccolo condominio composto da due appartamenti al primo piano e un'attività commerciale al piano terra. Al piano superiore la soffitta al grezzo da poter personalizzare come meglio si desidera. Al piano terra posto auto riservato nella corte condominiale. La zona residenziale è ben servita, a pochi passi ci sono: ufficio postale, bar, negozi e supermercato. I lavori di ristrutturazione sono ancora in corso e la consegna è prevista entro fine settembre. Info e visite 366.3355866
Caratteristiche dell'immobile
Contratto: Vendita
Tipologia: Appartamento
Superficie: 75 mq
Condizioni: Ottime
Riscaldamento: Autonomo
Camere: 1
Bagni: 2
RICHIEDI UNA VISITA

Agente immobiliare